建筑图纸下载方法:首先建筑图纸一般都是dwg文件,需要电脑按照autocad才能打开,之后到网上搜索得到(比较有名的网站有:筑龙、土木在线、建筑英才等等),注册后找到合适的图纸下载即可。
建筑工程施工图简称“施工图”,是表示工程项目总体 布局,建筑物的外部形状、内部布置、结构 构造、内外装修、材料做法以及设备、施工 等要求的图样。
建筑立面图将建筑的不同测表面,投影到铅直 投影面上而得到的正投影图。

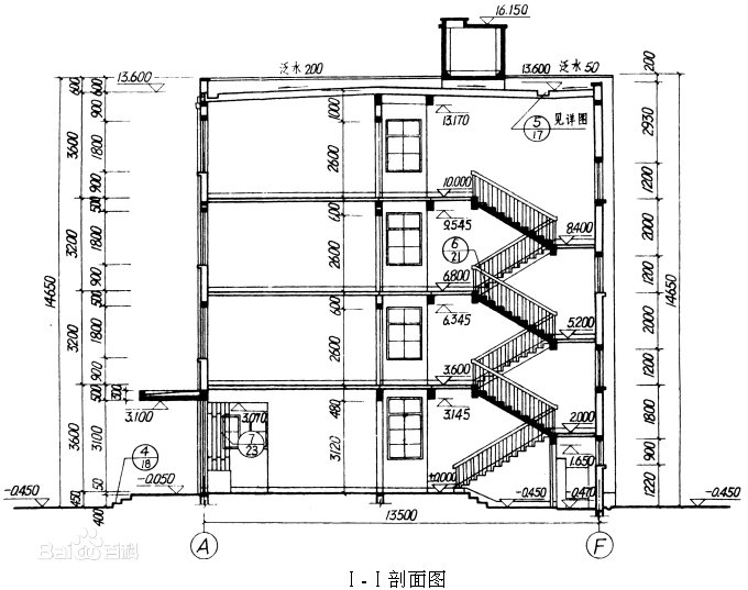
建筑剖面图是依据建筑平面图上标明的剖切位置 和投影方向,假定用铅垂方向的切平面将建筑切开后面得到的正投影图。

建筑平面图是假想在房屋的窗台以上作水平剖切后,移去上面部分作剩余部分的正投影而得到的水平剖面图。

